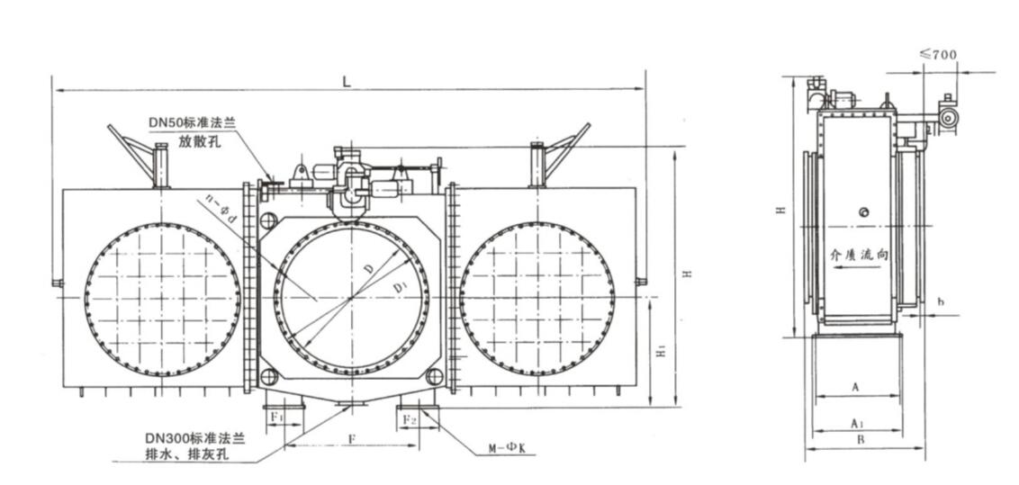
由主副閥體、閥板、伸縮節、固定套、電液推桿夾緊機構、行走電裝、限位器、左、右側閥體等部件組成。關閥:電液推桿驅動彈簧夾緊機構,使閥板脫開,到位后,行走電裝啟動,驅動閥板行走由開到關,到位后,電液推桿反向運動,彈簧夾緊機構自動夾緊到位,關閥結束。開閥則反之。
型號:FF941X
連接形式:法蘭
主體材料:碳鋼,不銹鋼
公稱通徑:400-2800
適用介質:煤氣、易燃有害氣體
密封形式:軟密封
外形:中型
流動方向:單向
驅動方式:手動,氣動,電動


版權所有:博納斯威閥門股份有限公司 地 址:天津市寶坻區九園工業園5號路
版權所有:博納斯威閥門股份有限公司
地 址:天津市寶坻區九園工業園5號路